Rosendorn
- Brunn am Gebirge, am Rosendorn
- Neubau eines Einfamilienhauses
- Entwurf, Einreichplanung
- wird ausgeführt
- 2007

Ein schmales, lang gestrecktes Grundstück in Ost-West-Richtung, darauf ein lang gestreckter, zweigeschoßiger Baukörper im rechten Winkel zur Straße, nahe der nördlichen Grundgrenze, zum Garten hin eingeschoßig auslaufend. An der Straße ein Carport.

Wie eine Spange umfängt das Obergeschoß den Quader und schützt durch seine Auskragung auf der Südseite die darunter liegenden Wohnräume vor der Sonne.

Im Erdgeschoß staffeln sich Vorraum, Essplatz, Küche und Wohnraum hintereinander, begleitet von einem durchlaufenden Panoramafenster auf der Südseite. Hier verläuft die Erschließungszone, durchgehend vom Eingang bis zum Wohnzimmer. Der Blick kann somit schon beim Betreten des Hauses bis in den Garten auf der Rückseite schweifen.

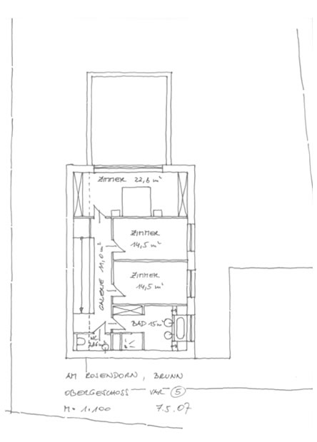
An der Nordseite führt die einläufige, durch ein Glasdach belichtete Treppe ins Obergeschoß. Hier reihen sich Bad, zwei Kinderzimmer und das Elternschlafzimmer mit großer Ostterrasse aneinander. Die Kinderzimmer sind mit an der Südfassade liegenden Schlafkojen auf Podesten ausgestattet, von welchen über große, niedrig angeordnete Fenster der Garten gut überblickt werden kann.
Auch das Badezimmer ist mit einem Fenster in der Höhe der Badewanne ausgestattet, von welcher man den Blick in den Garten genießen kann.

Im Untergeschoß ist Platz für ein Arbeitszimmer und einen großzügigen Fitnessbereich mit Sauna.

 
Projekt Rosendorn - Bild  1 Projekt Rosendorn - Bild  2 Projekt Rosendorn - Bild  3 Projekt Rosendorn - Bild  4  
 
büro b-r
villa wahl
haus 60
haus klampfel
villa l
zen_tral
stock_werk
ausguck
leo
massage mit praxis
rosendorn
 
Projekt Rosendorn - Bild  1