Ausguck
- Gumpoldskirchen
- Zubau und Sanierung des Kindergartens
- Entwurf, Gartengestaltung, Verkehrskonzept
- Wettbewerb
- Arbeitsgemeinschaft mit Arch. DI Harald Vavrovsky (Gartengestaltung, Wärmebedarfs-berechnung)
- 2007

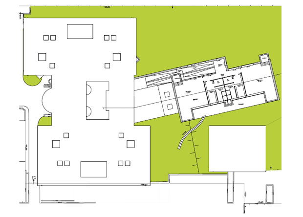
Der bestehende, 4-gruppige Kindergarten konnte den heutigen Anforderungen, sowohl die Größe, als auch die Ausstattung betreffend, nicht mehr gerecht werden. Er sollte um 2 Gruppen, wie auch durch 2 große Bewegungsräume sowie einen Speisesaal erweitert werden, entweder durch einen Zubau, oder einen kompletten Neubau.

Unser Büro entschied sich für eine Sanierung sowie einen Zubau, der ostseitig in Form eines lang gestreckten, das Vormittagslicht einfangenden, zweigeschoßigen Quaders an das bestehende Gebäude „angedockt“ wird, zu diesem jeweils um ein halbes Geschoß versetzt.

Eine großzügige Rampenanlage verbindet die Bauteile, als auch die zwei Ebenen des Zubaus miteinander. Durch die halbgeschoßige Versetzung bleiben die Wege kurz, kleine, niedrig angeordnete Öffnungen in der Außenwand der Rampe bieten unterschiedliche Ausblicke in den Garten. Im unteren Geschoß befinden sich zwei, durch Schiebewände zusammenfassbare Bewegungsräume sowie die Küche.

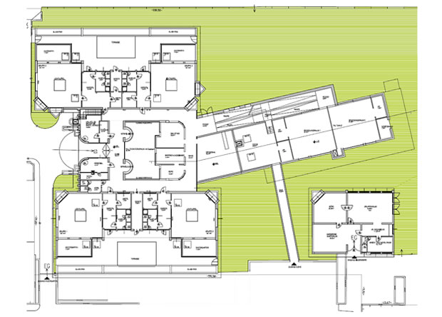
Im Obergeschoß sind die zwei neuen Gruppen samt Nebenräumen untergebracht. Die Gruppenräume öffnen sich über große Glasflächen und eine Terrasse zum Garten, den die Kinder direkt über eine Rutsche erreichen können. Im rückwärtigen Bereich der Gruppenräume ragen kleine würfelförmige Bauteile aus der Fassade heraus; über kleine Fenster kann in dem einen Gruppenraum das Geschehen im Garten, im anderen das auf der Rampe beobachtete werden.

Der bestehende Bewegungsraum im Zentrum des Kindergartens wird „herausgeschnitten“, die Decke und die Seitenwände durch Glas ersetzt. Dadurch entsteht ein Atrium als Multifunktionsraum, der durch seine Transparenz für eine Lichtdurchflutung der angrenzenden, Erschließungswege sorgt und Sichtbeziehungen zwischen den Gängen und zum Eingangbereich schafft.

Durch umfassende Wärmeschutzmaßnahmen, teilweise Schließung der gedeckten Terrassen zu Wintergärten sowie Vergrößerung und Erneuerung der Fensterflächen in den Gruppenräumen kann auch der bestehende Bauteil auf einen heutigen Stand der Technik gebracht werden.

Der Garten soll umfassend umgestaltet werden. Durch die Schaffung von unterschiedlichsten Spiel-Räumen wie Labyrinth, Piratenversteck, Gemüsebeete, Wasserstelle, Rennbahn und Burg wird der Garten zu einer Erlebniswelt für die Kinder.

 
Projekt Ausguck - Bild 1 Projekt Ausguck - Bild 2 Projekt Ausguck - Bild 3 Projekt Ausguck - Bild 4  
Projekt Ausguck - Bild 5 Projekt Ausguck - Bild 6      
 
büro b-r
villa wahl
haus 60
haus klampfel
villa l
zen_tral
stock_werk
ausguck
leo
massage mit praxis
rosendorn
 
Projekt Ausguck - Bild 6