Massage mit Praxis
- Hinterbrühl, Kröpfelsteigstraße
- Zubau einer Massagepraxis an eine Villa aus der Gründerzeit
- Vorentwurf, Entwurf, Einreichplanung
- wird ausgeführt
- 2007/2008

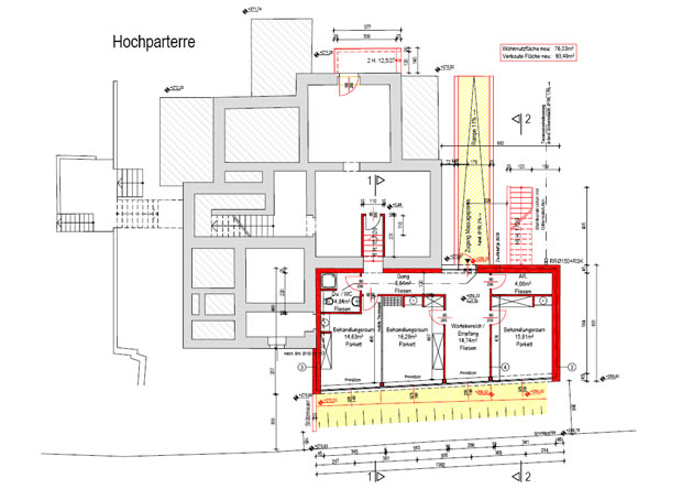
Bis jetzt waren Wohnen und Arbeiten in der auf einem Südhang thronenden Villa, Baujahr 1898, vereint. Im Erdgeschoß war die Massagepraxis, im Obergeschoß die Wohnung untergebracht.

Dem Wunsch der Bauherrin nach mehr Wohnfläche, sowie einer räumlichen Trennung zwischen Wohnen und Arbeiten, konnte durch einen Zubau an der Westseite des Gebäudes Rechnung getragen werden.

Um diesen möglichst schonend und harmonisch an die bestehende Villa anzuschließen, entschied sich unser Büro für einen eingeschoßigen Quader, der in einer einspringenden Ecke angebaut wird. Das Niveau der Behandlungsräume wurde an das des bestehenden Kellers angepasst; eine interne Stiegenanlage verbindet den Zubau mit dem Haupthaus.

Das Flachdach des Zubaus dient dem angrenzenden Wohnbereich im Erdgeschoß als Terrasse, sowie als Verbindung zum Garten, die bisher durch die erhöhte Lage nicht gegeben war. Eine Stahltreppe führt von der begrünten Terrasse in den privaten Garten hinunter.

Die 3 Behandlungsräume sind ausschließlich nach Westen, zur Grundgrenze orientiert und somit vom Garten nicht einsehbar, und umgekehrt. Dadurch, sowie auch durch den eigenen Zugang über eine Rampe von außen kann die gewünschte räumliche Trennung zwischen Patienten und Bewohnern erreicht werden und größtmögliche Privatheit im Garten erhalten bleiben.

 
Projekt Massage mit Praxis - Bild 1 Projekt Massage mit Praxis - Bild 2 Projekt Massage mit Praxis - Bild 3    
 
büro b-r
villa wahl
haus 60
haus klampfel
villa l
zen_tral
stock_werk
ausguck
leo
massage mit praxis
rosendorn
 
Projekt Massage mit Praxis - Bild 1